7 day project for acceptance into EPA.

Co-living and work space made for artisans in the area. Offering housing and work-spaces as well as places to sell their curated goods or services
OIG 1
OIG 2
OIG 3
OIG.2deukMNGMXW 1
OIG (6) 1
OIG (5) 1
OIG (4) 1
OIG (3) 1
OIG (2) 1
OIG (1) 1
Micro analysis 1
macro analysis 1
Design developement 1
7 1
6 4
5 2
4 people edit 1
3 people edit 1
2 people edit 1
1 6
Axonometric 1
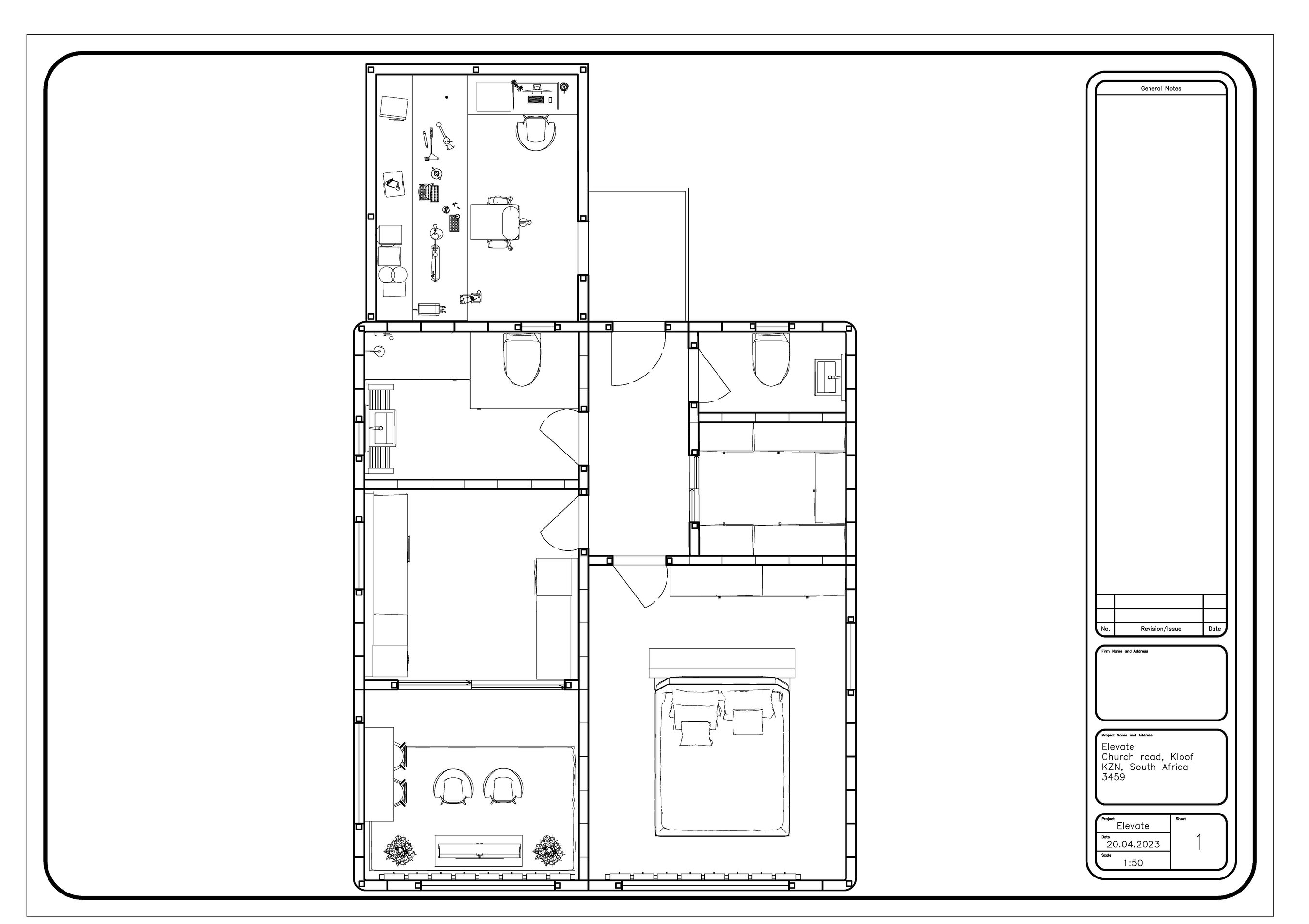
1;50 plans
1;500 plans final
1
7 1
Date: 2023 Type: Competition entry Focus: environmental analysis, rendering, digital drawing, autocad living