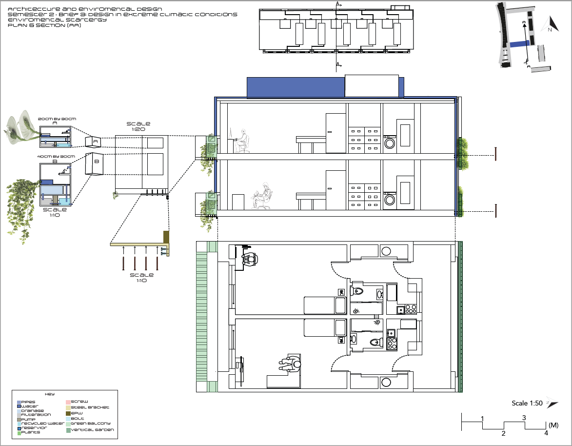
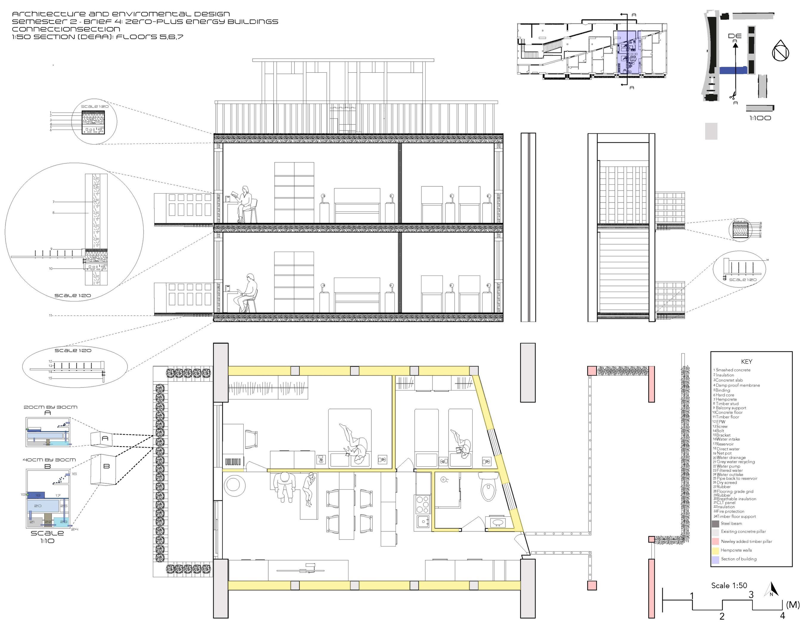
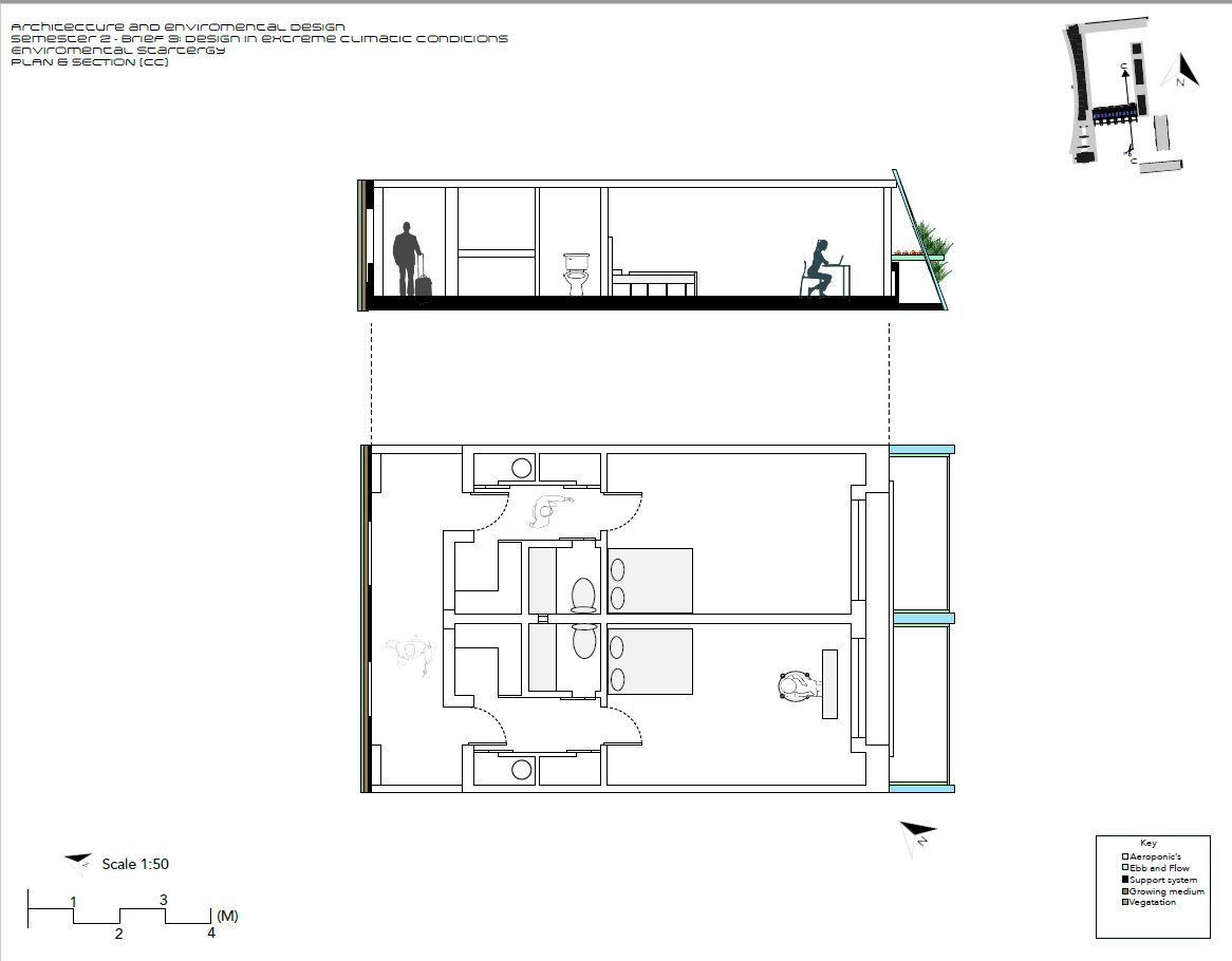
Ying yang a residential project aimed to introduce urban farming. The South facing side is made from timber and concrete for the living spaces. The north facing side with little to no sun is to be made from glass. This push and pull relation is created to enhance daylight in the building using passive light strategies. Residents are able to grow food on the roof and sell the produce in the cafe.
Screen Shot 2022-11-21 at 16.15 4
winterLSW  1
winter b4 copy 1
summer b4 copy 1
Screenshot 2023-08-16 122954 1
Screenshot 2023-08-16 122942 1
Screenshot 2023-08-16 122927 1
Screenshot 2023-08-16 122913 1
Screen Shot 2022-11-21 at 16.16 1
Screen Shot 2022-11-21 at 16.15 1
Screen Shot 2022-11-21 at 16.15 2
Screen Shot 2022-11-21 at 16.15 3
plants page 1
map copy 1
explo axo 1
detail section 1
Cover Page 1
concept montage 1
all floors 1
Date: 2018-2019 Type: Second year Focus: environmental analysis, urban farming, dimensional drawing Ying Yang
website DD year 2 v0001 1